
产品分类:超声波振动筛
产品优势:大汉机械专注石墨粉超声波振动筛研发、生产与定制多年,凭借对石墨粉易团聚、细粒度特性的深入研究,为锂电池、光伏、科研等行业提供优质设备与解决方案,具备强大的非标定制
全国统一销售热线:0373-268 2333
石墨粉超声波振动筛 是针对石墨粉易团聚、细粒度特性设计的筛分设备,通过 “振动筛分 + 高频超声波清网” 协同作用,解决普通筛机堵网难题。设备主体多采用不锈钢,符合洁净生产要求,常用筛网目数为200-800 目,适配不同纯度需求的石墨粉加工。我厂针对石墨粉筛分提供的有超声波振动筛用于工业化量产,超声波试验筛则适配实验室微量样品检测,精准控制小批量石墨粉粒度,支持1-7层同步筛分,筛网密度可以达到1800目。
	
我们结合石墨粉筛分场景与精度需求,细分出工业级石墨粉超声波振动筛与石墨粉超声波试验筛两类核心机型,精准覆盖不同目数石墨粉的处理需求。
	
石墨粉超声波振动筛:主打量产筛分,专为 200-800 目石墨粉设计。设备采用不锈钢机身与大直径筛面(400-2000mm 可选),搭配 20-38kHz 超声波清网系统,可快速破解粉体团聚、防止筛孔堵塞,处理量达 1-10t/h。
石墨粉超声波试验筛:聚焦实验室精准检测,适配 800-1800 目超细石墨粉。机型小巧紧凑,适配 200mm标准筛框,支持多层筛塔叠加(1-7),可同步完成多粒级分析,能满足科研、质检中对超细石墨粉粒度分布的精准把控。
石墨粉超声波振动筛通过高频超声波彻底消除石墨粉的静电吸附与团聚效应,从根本上解决筛网堵塞难题,使筛分效率提升1-2倍;同时实现200-1800目超精细分级。
	
可定制化:能够结合您的现场情况为您定制设备合适的高度以及出料口的位置和方向,结合您的需求为您配备合适的电机功率,保证设备能够稳定安全的运行。
一机多用:加装不同目数的筛网可以同步完成对石墨粉的筛分和除杂工作,另外也可以处理同目数不同类型的粉末。
防堵网效率高:通过高频超声波清网系统,可快速击碎 200-1800 目石墨粉的团聚体,避免筛孔堵塞,筛网通透率提升 60% 以上。
筛分精度准:超声波与振动协同作用使粉体均匀分布筛面,200-800 目工业筛分误差 ±1μm 内,800-1800 目试验筛分误差≤±1μm,满足不同纯度石墨粉的粒度控制需求。
适配性强:工业级机型处理量达 3-10t/h 适配量产,试验筛小巧灵活满足实验室检测;全密闭结构,还能保障生产环境洁净与粉体无污染 。
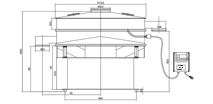
石墨粉超声波振动筛结合 “振动筛分” 与 “超声波清网” 双重技术,其组成结构围绕石墨粉易团聚、需准确筛分的特性设计,各部件协同保障筛分效率与精度。
	
机身框架:多采用不锈钢一体焊接成型,结构稳固抗振动,表面抛光无死角,既防止石墨粉残留污染,又适配食品、医药等洁净生产场景。
减震装置:底部配备橡胶减震弹簧或空气弹簧,能缓冲设备运行时的振动冲击,减少对地面的损伤,同时降低运行噪音。
振动电机:作为动力核心,采用双电机对称布置,通过可调激振力产生直线或圆形振动轨迹,使石墨粉沿筛面均匀滑动。
筛框与筛网:筛框为不锈钢材质,密封性强可防粉尘逸散;筛网根据目数需求选用金属编织网或冲孔网,200-800 目配高强度筛网保障量产耐用性,800-1800 目配高精度筛网控制细粉筛分误差。
超声波发生器:核心控制部件,可输出 20-38kHz 可调高频电信号,根据石墨粉目数精准调校参数,为清网提供适配能量。
	
| 型 号 | 有效直径 mm | 筛分面积 m2 | 筛网规格 目 | 层 数 层 | 输入电源 V/HZ | 超声波 型 号 | 换能器 位 置 | 频 率 KHz | 超声波 档 位 | 功 率 Kw | 
| DHC-200 | 200 | 0.03 | 10-1200 | 1-7 | 220/50 | ZTC-7 | 外置 | 38KHz | 连续1-9档 脉冲2档 | 0.18 | 
| DHC-400 | 340 | 0.09 | 60-635 | 1-3 | 振动筛 380/50 超声波 220/50 | 内置/外置 | 0.25 | |||
| DHC-600 | 540 | 0.23 | 0.55 | |||||||
| DHC-800 | 730 | 0.42 | 0.75 | |||||||
| DHC-1000 | 900 | 0.64 | 1.1 | |||||||
| DHC-1200 | 1100 | 0.95 | 1.5 | |||||||
| DHC-1500 | 1400 | 1.54 | 2.2 | |||||||
| DHC-1800 | 1700 | 2.27 | 3.0 | 
石墨粉超声波振动筛设备启动后,双振动电机产生对称激振力,带动筛框做直线或圆形振动,使进料口落入的石墨粉沿筛面均匀滑动,符合目数要求的细粉透过筛孔进入下层,粗杂颗粒则从排渣口排出,完成基础分级。同时,超声波发生器输出 20-38kHz电信号,经换能器转化为机械振动并传递至筛网,高频振动快速击碎 200-1800 目石墨粉的团聚体,实时清除筛孔堵塞。两种力互不干扰,振动保障筛分效率,超声波解决堵网难题,最终实现石墨粉的粒度分离。
	
作为超声波振动筛的厂家,我们有不同行业的客户,我们结合客户的生产需求以及生产现场,定制生产了合适的石墨粉超声波振动筛,以下是不同行业的使用反馈。
	
800目石墨粉筛分:锂电池负极材料企业需处理800目天然石墨粉,要求筛分精度±1μm、处理量5t/h,且需避免粉尘污染。我厂为其定制直径1000mm工业级石墨粉超声波振动筛,采用304不锈钢全密闭机身,搭配30kHz高频超声波清网系统与200目高精度筛网;进料口增设缓冲料斗,出料口衔接负压除尘装置。设备投用后,成功解决石墨粉团聚堵网问题,筛分效率提升40%。
1200目超细石墨粉筛分:高校材料实验室需对1200目超细石墨粉进行粒度分布研究,要求适配微量样品(50-100g/次)、支持3层筛网同步分析。我厂定制200mm直径石墨粉超声波试验筛,配备超声波发生器与1000目、1200目、1500目三层标准筛框;增设样品收集托盘与数据记录模块。该设备筛分精度误差≤±0.5μm,单次试验时间缩短至15分钟。
600目石墨粉除杂:光伏导电浆料企业需去除600目石墨粉中的微米级杂质颗粒,要求除杂率≥99%、设备兼容现有生产线。我厂定制直径800mm石墨粉超声波振动筛,采用600目筛网,搭载20kHz超声波清网系统与自动排杂装置;进料口与生产线料仓无缝衔接,出料口带流量调节阀。设备运行后,石墨粉杂质含量从0.8%降至0.15%以下,处理量达3.5t/h。
大汉机械专注石墨粉超声波振动筛研发、生产与定制多年,凭借对石墨粉易团聚、细粒度特性的深入研究,为锂电池、光伏、科研等行业提供优质设备与解决方案,具备强大的非标定制能力,可根据客户具体需求量身定做:无论是200-800目工业级量产筛分,还是800-1800目实验室精细检测,均能定制适配的筛面直径、筛网目数、机身材质及功能模块,为保障客户筛分效果,我们支持免费试机服务,客户可寄料至厂进行实际筛分测试,直观验证设备精度与效率。
	
石墨粉作为一种重要的工业原料,广泛应用于锂电池、导电材料、密封材料、润滑剂及高温冶金等领域。其粉体通常具有重量轻、易漂浮、带静电、易团聚等特性,使用普通振动筛进行筛分时,极易堵塞网孔、筛分效率低下且精度难以保证。超声波振动筛通过集成先进的超声波清网系统,成功攻克了这些技术瓶颈,成为石墨粉精细化筛分的理想解决方案。